Добро пожаловать на http://vipplan.ru

Випплан Россошь - это тысячи проектов домов в нашем каталоге!

Вы всегда сможете найти для себя проект дома вашей мечты! Даже если этого не случилось, мы готовы в любую минуту предложить проект индивидуального дома.

Забыли пароль?
Вы еще не регистрировались?

Перейдите по ссылке ниже на страницу регистрации.

Регистрация...

Внимание!!!

В проектную документацию могут быть внесены изменения любой сложности, в соответствии в Вашими пожеланиями!

Полезные статьи

Перекрытия в доме

Перекрытия – одно из важнейших составляющих строящегося дома. Это горизонтальная внутренняя защитная конструкция, разделяющая по уровню смежные помещения дома. По назначению выделяют подвальные, межэтажные и чердачные перекрытия. При проектировании домов и зданий различного назначения, требования к межэтажным перекрытиям определяются их местоположением и функциями разделяемых помещений: надподвальные, межэтажные, чердачные и т.д....

Виды бассейнов

В наше время, строительство бассейна на территории своего участка, не такая уж и роскошь. Выбор видов и стилей бассейна, на сегодняшний день, очень большой....

Проекты домов и коттеджей > Каталог проектов домов > Проект одноэтажного дома с мансардой Vg2336

Проект одноэтажного дома с мансардой Vg2336

Проект одноэтажного дома с мансардой
Зарегистрируйтесь

Проект № Vg2336


Техническое описание
Общая площадь: 110.31 м2
Жилая площадь: 69.95 м2
Высота здания: 9.55 м
Размеры дома: 9.98м×8.28м
Кол-во комнат: 5
Цокольный этаж: нет
Гараж: нет
Мансарда: есть

Kонструкция
Фундамент: Ленточный
Перекрытия: Монолитные перекрытия
Материал стен: Бетонные блоки

Архитектурный раздел
Конструктивный раздел
АР+КР - 48 000 (Со скидкой 20%)
Модель проекта индивидуального одноэтажного жилого дома с мансардой с размерами здания 9,98 x 8,28 м. Наружная отделка здания – штукатурка. Фундамент – ленточный, монолитный ж/б. Наружные стены – пенобетонный блок. Внутренние стены и перегородки -пенобетонный блок. Пол первого этажа - пол помонолитной плите. Межэтажное перекрытие — монолитное ж/б перекрытие. Крыша двускатная. Кровля –металлочерепица. Окна — металлопластиковые
Генплан застройки участка / Паспорт проекта 7000 руб / 10000 руб
Инженерный раздел (полный) 55000 руб
Смета на строительство 27500 руб
Теплотехнический расчет материалов стен Бесплатно
Стоимость проекта со незначительнми изменениями 57250 руб
Стоимость проекта со средними изменениями* 65500 руб
Стоимость проекта со значительными изменениями** 67700 руб

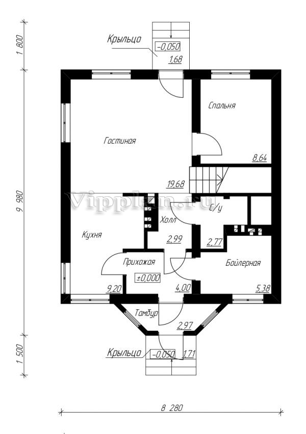
План первого этажа


Тамбур — 5,44 кв м
Холл — 5,03 кв м
Гостиная — 31,62 кв м
Кухня-столовая — 10,88 кв м
Спальня — 10,22 кв м
С/у — 3,37 кв м
Бойлерная — 6,95 кв м
Гараж — 35,52 кв м

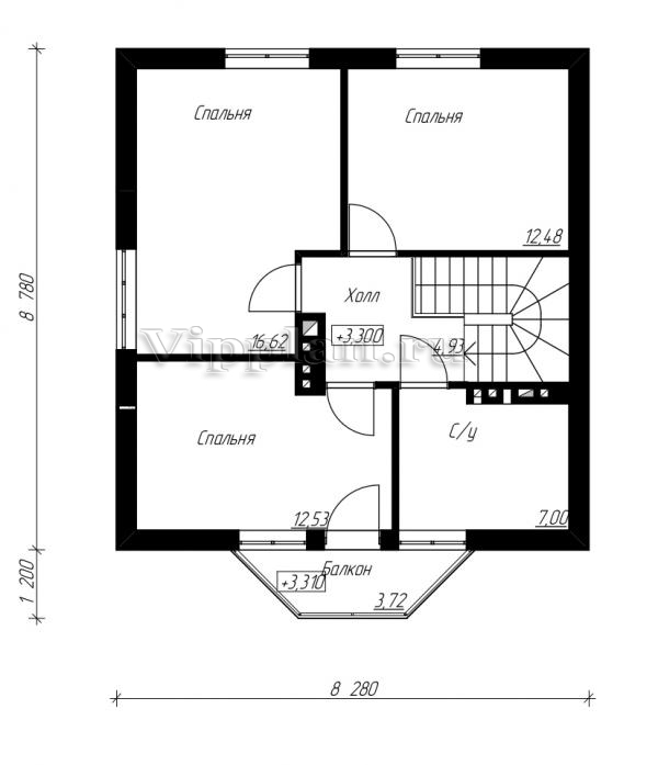
План мансардного этажа


Холл — 6,32 кв м
Спальня — 19,89 кв м
Спальня — 19,81 кв м
Спальня — 19,00 кв м
Ванная — 10,13 кв м
Спальня — 25,64 кв м
Ванная — 5,88 кв м
Гардероб — 3,77 кв м
Проект одноэтажного дома с мансардой Проект одноэтажного дома с мансардой Проект одноэтажного дома с мансардой Проект одноэтажного дома с мансардой

Модификации проектов

Внесение изменений и привязка к участку строительства

В любой из проектов от компании VIPplan - Россошь по вашему желанию могут быть внесены изменения в материалы стен, материалы наружной отделки дома, а также будет произведена адаптация проекта под конкретный регион строительства (с учетом грунтов региона, геологических особенностей вашего участка и местных климатических условий) - БЕСПЛАТНО !!! (кроме проектов со скидкой и проектов наших партнеров).

Любой из проектов, размещенных на сайте rossosh.vipplan.ru мы можем выполнить из требуемых вам строительных материалов: ячеистый бетон (газобетон, пеноблок), керамоблок, кирпич, шлакоблок, бетонный блок, дерево (брус, клееный брус), каркасная технология (деревянный каркас, металлокаркас (ЛСТК)).

Фасад дома и его наружную отделку так же возможно выполнить с применением различных облицовочных материалов: структурной штукатурки, (с утеплителем и без), сайдингом (пластиковый или металлосайдинг), фиброплитами, кирпича.

 
6 Избранные
проекты

Доставка проектов по России: Москва (Московская область), Санкт-Петербург (Ленинградская область), Краснодар, Ростов-на-Дону, Ставрополь, Сочи, Волгоград, Новосибирск, Белгород, Брянск, Воронеж, Саратов, Хабаровск, Астрахань, Нальчик, Владикавказ, Екатеринбург, Тюмень, Самара, Нижний Новгород, Казань, Пермь, Уфа, Челябинск, Красноярск, Ханты-Мансийск, Иркутск, Курган, Оренбург, Омск, Томск, Барнаул, Новокузнецк, Кемерово, Абакан, Чита, Якутск, Южно-Сахалинск, Петропавловск-Камчатский и страны ближнего зарубежья: Белоруссия, Украина, Казахстан