Добро пожаловать на http://vipplan.ru

Випплан Россошь - это тысячи проектов домов в нашем каталоге!

Вы всегда сможете найти для себя проект дома вашей мечты! Даже если этого не случилось, мы готовы в любую минуту предложить проект индивидуального дома.

Забыли пароль?
Вы еще не регистрировались?

Перейдите по ссылке ниже на страницу регистрации.

Регистрация...

Внимание!!!

В проектную документацию могут быть внесены изменения любой сложности, в соответствии в Вашими пожеланиями!

Полезные статьи

Свайно-ростверковый, буронабивной фундамент

Для объединения свай в общий фундамент устанавливают бетонные ростверки (железобетонные плиты). Устройство ростверка зависит от расположения, вида свай и конструкции здания. Ростверки могут быть монолитными, сборными или сборно-монолитными, также возможны безростверковые решения. ...

Комбинированные дома

Посмотрите, насколько далеко шагнула архитектура за последние десятилетия. Сколько изменилось в облике современных городов. А задумывались ли наши родители, о том что они увидят необыкновенные небоскребы и элитные многоквартирные дома, чьи фасады напоминают обруганную капиталистическую действительность. У людей появилась возможность построить дом за городом и в тишине на природе, реализовать любые дизайнерские фантазии. Те, кто может позволить себе частный дом, не ограничены финансами. Для многих частный дом – это показатель их материального благополучия, поэтому никто из них не хочет испол...

Проекты домов и коттеджей > Каталог проектов домов > Проект двухэтажного дома с подвалом Vg2468

Проект двухэтажного дома с подвалом Vg2468

Проект двухэтажного дома с подвалом
Зарегистрируйтесь

Проект № Vg2468


Техническое описание
Общая площадь: 269.95 м2
Жилая площадь: 92.36 м2
Высота здания: 9.15 м
Размеры дома: 14.03м×16.08м
Кол-во комнат: 4
Цокольный этаж: есть
Гараж: нет
Мансарда: нет

Kонструкция
Фундамент: ленточный, блоки ФБС
Перекрытия: сборные ж/б плиты
Материал стен: Газобетон

Архитектурный раздел
Конструктивный раздел
Инженерный раздел
АР+КР - 72 000 (Со скидкой 20%)
АР+КР+ИР - 166 500 (Со скидкой 50%)
Проект индивидуального двухэтажного жилого дома с подвалом с размерами здания 14,03 x 16,08 м. Наружная отделка здания – облицовочный кирпич. Фундамент – ФБС. Наружные стены – газобетонный блок с утеплителем, воздушным зазором и отделкой облицовочным кирпичом. Внутренние стены – газобетонный блок. Перегородки – газобетонный блок. Пол подвала и частично 1 этажа – пол по грунту. Межэтажные перекрытия – сборные плиты перекрытия. Крыша – многоскатная. Кровля – металлочерепица. Окна – металлопластиковые. Лестница – деревянная.
Генплан застройки участка / Паспорт проекта 7000 руб / 10000 руб
Инженерный раздел (полный) 94500 руб (135000 руб)
Смета на строительство 67500 руб
Теплотехнический расчет материалов стен Бесплатно
Стоимость проекта со незначительнми изменениями 83250 руб
Стоимость проекта со средними изменениями* 103500 руб
Стоимость проекта со значительными изменениями** 108900 руб

План цокольного этажа


Помещение 1 — 13,35 м2
Помещение 2 — 14,98 м2
Помещение 3 — 32,22 м2

План первого этажа


Тамбур — 3,08 м2
Холл — 21,19 м2
С/у — 3,84 м2
Гараж — 30,80 м2
Помещение 4 — 2,85 м2
Бойлерная — 4,93 м2
Кухня — 14,02 м2
Гостиная — 32,52 м2

Проект двухэтажного дома с подвалом

Проект двухэтажного дома с подвалом

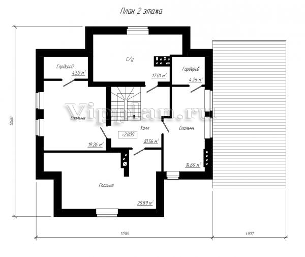
План второго этажа


Холл — 10,56 м2
С/у — 17,01 м2
Гардероб — 4,26 м2
Спальня — 14,69 м2
Спальня — 25,89 м2
Спальня — 19,26 м2
Гардероб — 4,50 м2
Проект двухэтажного дома с подвалом Проект двухэтажного дома с подвалом Проект двухэтажного дома с подвалом Проект двухэтажного дома с подвалом
Внесение изменений и привязка к участку строительства

В любой из проектов от компании VIPplan - Россошь по вашему желанию могут быть внесены изменения в материалы стен, материалы наружной отделки дома, а также будет произведена адаптация проекта под конкретный регион строительства (с учетом грунтов региона, геологических особенностей вашего участка и местных климатических условий) - БЕСПЛАТНО !!! (кроме проектов со скидкой и проектов наших партнеров).

Любой из проектов, размещенных на сайте rossosh.vipplan.ru мы можем выполнить из требуемых вам строительных материалов: ячеистый бетон (газобетон, пеноблок), керамоблок, кирпич, шлакоблок, бетонный блок, дерево (брус, клееный брус), каркасная технология (деревянный каркас, металлокаркас (ЛСТК)).

Фасад дома и его наружную отделку так же возможно выполнить с применением различных облицовочных материалов: структурной штукатурки, (с утеплителем и без), сайдингом (пластиковый или металлосайдинг), фиброплитами, кирпича.

 
6 Избранные
проекты

Доставка проектов по России: Москва (Московская область), Санкт-Петербург (Ленинградская область), Краснодар, Ростов-на-Дону, Ставрополь, Сочи, Волгоград, Новосибирск, Белгород, Брянск, Воронеж, Саратов, Хабаровск, Астрахань, Нальчик, Владикавказ, Екатеринбург, Тюмень, Самара, Нижний Новгород, Казань, Пермь, Уфа, Челябинск, Красноярск, Ханты-Мансийск, Иркутск, Курган, Оренбург, Омск, Томск, Барнаул, Новокузнецк, Кемерово, Абакан, Чита, Якутск, Южно-Сахалинск, Петропавловск-Камчатский и страны ближнего зарубежья: Белоруссия, Украина, Казахстан