Добро пожаловать на http://vipplan.ru

Випплан Россошь - это тысячи проектов домов в нашем каталоге!

Вы всегда сможете найти для себя проект дома вашей мечты! Даже если этого не случилось, мы готовы в любую минуту предложить проект индивидуального дома.

Забыли пароль?
Вы еще не регистрировались?

Перейдите по ссылке ниже на страницу регистрации.

Регистрация...

Внимание!!!

В проектную документацию могут быть внесены изменения любой сложности, в соответствии в Вашими пожеланиями!

Полезные статьи

Искусственный камень

Среди современных материалов, особого внимания заслуживает искусственный камень. Естественность и красота натурального камня очевидна. Но нужно реально оценивать свои возможности и присмотреться именно к искусственному камню, так как сам искуственный камень и стоимость производства работ с ним в Россоши значительно дешевле чем натуральный....

Фундамент под гараж

Обычно фундаменты под гараж делаются из бетонного раствора и заливаются, как монолит. Гаражные фундаменты так же можно укладывать из бетона с применением бутового камня. Такие фундаменты тоже считаются монолитными. В этом случае происходит экономия бетона....

Проекты домов и коттеджей > Каталог проектов домов > Проект одноэтажного дома с террасой Vg2758

Проект одноэтажного дома с террасой Vg2758

Проект одноэтажного дома с террасой
Зарегистрируйтесь

Проект № Vg2758


Техническое описание
Общая площадь: 125.81 м2
Жилая площадь: 67.26 м2
Высота здания: 7.16 м
Размеры дома: 14.81м×14.32м
Кол-во комнат: 4
Цокольный этаж: нет
Гараж: нет
Мансарда: нет

Kонструкция
Фундамент: свайный
Перекрытия: балки
Материал стен: Газобетон

Архитектурный раздел
Конструктивный раздел
АР+КР - 52 000 (Со скидкой 20%)
Одноэтажный дом с террасой, с размерами здания 14,81 х 14,32 м. Наружная отделка здания – штукатурка, клинкерная плитка. Фундамент – свайно-ростверковый буронабивной. Наружные стены – газобетонные блок. Внутренние стены – газобетонные блок. Перегородки – газобетонные блоки. Пол первого этажа – по грунту. Межэтажное перекрытие - деревянные балки. Крыша - двускатная, с покрытием металлочерепицей. Окна — металлопластиковые.
Генплан застройки участка / Паспорт проекта 7000 руб / 10000 руб
Инженерный раздел (полный) 63000 руб
Смета на строительство 31500 руб
Теплотехнический расчет материалов стен Бесплатно
Стоимость проекта со незначительнми изменениями 61850 руб
Стоимость проекта со средними изменениями* 71300 руб
Стоимость проекта со значительными изменениями** 73800 руб

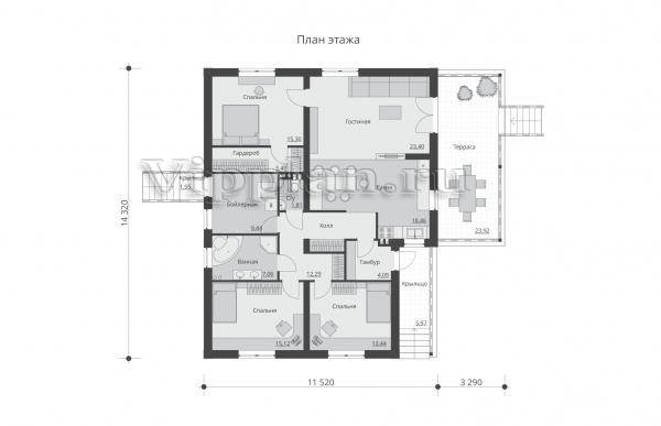
План первого этажа


Тамбур - 4,09 м2
Холл - 12,29 м2
Кухня - 18,46 м2
Гостиная - 23,40 м2
Спальня - 15,30 м2
Гардероб - 5,40 м2
С/у - 1,81 м2
Бойлерная - 9,44 м2
Ванная - 7,06 м2
Спальня - 15,12 м2
Спальня - 13,44 м2
Проект одноэтажного дома с террасой Проект одноэтажного дома с террасой Проект одноэтажного дома с террасой Проект одноэтажного дома с террасой

Модификации проектов

Внесение изменений и привязка к участку строительства

В любой из проектов от компании VIPplan - Россошь по вашему желанию могут быть внесены изменения в материалы стен, материалы наружной отделки дома, а также будет произведена адаптация проекта под конкретный регион строительства (с учетом грунтов региона, геологических особенностей вашего участка и местных климатических условий) - БЕСПЛАТНО !!! (кроме проектов со скидкой и проектов наших партнеров).

Любой из проектов, размещенных на сайте rossosh.vipplan.ru мы можем выполнить из требуемых вам строительных материалов: ячеистый бетон (газобетон, пеноблок), керамоблок, кирпич, шлакоблок, бетонный блок, дерево (брус, клееный брус), каркасная технология (деревянный каркас, металлокаркас (ЛСТК)).

Фасад дома и его наружную отделку так же возможно выполнить с применением различных облицовочных материалов: структурной штукатурки, (с утеплителем и без), сайдингом (пластиковый или металлосайдинг), фиброплитами, кирпича.

 
6 Избранные
проекты

Доставка проектов по России: Москва (Московская область), Санкт-Петербург (Ленинградская область), Краснодар, Ростов-на-Дону, Ставрополь, Сочи, Волгоград, Новосибирск, Белгород, Брянск, Воронеж, Саратов, Хабаровск, Астрахань, Нальчик, Владикавказ, Екатеринбург, Тюмень, Самара, Нижний Новгород, Казань, Пермь, Уфа, Челябинск, Красноярск, Ханты-Мансийск, Иркутск, Курган, Оренбург, Омск, Томск, Барнаул, Новокузнецк, Кемерово, Абакан, Чита, Якутск, Южно-Сахалинск, Петропавловск-Камчатский и страны ближнего зарубежья: Белоруссия, Украина, Казахстан