Добро пожаловать на http://vipplan.ru

Випплан Россошь - это тысячи проектов домов в нашем каталоге!

Вы всегда сможете найти для себя проект дома вашей мечты! Даже если этого не случилось, мы готовы в любую минуту предложить проект индивидуального дома.

Забыли пароль?
Вы еще не регистрировались?

Перейдите по ссылке ниже на страницу регистрации.

Регистрация...

Внимание!!!

В проектную документацию могут быть внесены изменения любой сложности, в соответствии в Вашими пожеланиями!

Полезные статьи

Выбор проекта дома в Россоши. Типовой или индивидуальный?

Строительство дома начинается с выбора проекта. От него будет зависит удобство, комфорт и функциональность Вашего будущего дома. Какой проект выбрать? В каталоге проектов домов VIPplan Россошь предоставлен огромный выбор проектов на любой вкус и кошелек. В итоге выбор сводится к покупке типового проекта дома или заказа индивидуального проекта. Для упращения задачи, расскажем о каждом варианте по отдельности...

Виды бассейнов

В наше время, строительство бассейна на территории своего участка, не такая уж и роскошь. Выбор видов и стилей бассейна, на сегодняшний день, очень большой....

Проекты домов и коттеджей > Каталог проектов домов > Проект небольшого узкого дома из кирпича Vg972

Проект небольшого узкого дома из кирпича Vg972

Проект небольшого узкого дома из кирпича
Зарегистрируйтесь

Проект № Vg972


Техническое описание
Общая площадь: 106.19 м2
Жилая площадь: 62.08 м2
Высота здания: 8.07 м
Размеры дома: 10.54м×7.44м
Кол-во комнат: 5
Цокольный этаж: нет
Гараж: нет
Мансарда: есть

Kонструкция
Фундамент: щелевой, монолитный ж/б
Перекрытия: металлические балки с деревянным настилом
Материал стен: Кирпич

Архитектурный раздел
Конструктивный раздел
АР+КР - 48 000 (Со скидкой 20%)
Проект индивидуального двухэтажного одноквартирного жилого дома с габаритными размерами 10,54x7,44м. Наружная отделка здания - облицовочный кирпич, частично по фасаду отделка камнем. Обрамление оконных проемов - кирпич / металлосайдинг / фасадная панель, цвет по RAL. Цоколь - камень. Фундамент - щелевой ("стена в грунте"), монолитный ж/б. Наружные стены запроектированы из: Газобетонных блоков, экструдированного пенополистирола, облицовочного кирпича. Внутренние стены и перегородки - из кирпича. Перемычки - монолитные и сварные из профиля проката. Перекрытие над первым этажом - металлические балки (двутавр) с деревянным настилом. Пол первого этажа - пол по грунту. Крыша двускатная. Материал кровли - металлочерепица. Окна - металлопластиковые, выполненные по индивидуальному заказу. Лестница - ж/б монолитная. Выполняется по индивидуальному заказу.
Генплан застройки участка / Паспорт проекта 7000 руб / 10000 руб
Инженерный раздел (полный) 53000 руб
Смета на строительство 26500 руб
Теплотехнический расчет материалов стен Бесплатно
Стоимость проекта со незначительнми изменениями 57350 руб
Стоимость проекта со средними изменениями* 65300 руб
Стоимость проекта со значительными изменениями** 67400 руб

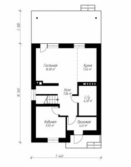
План первого этажа


Прихожая — 4,61 кв м
Холл — 7,06 кв м
Гостиная — 16,58 кв м
Кухня — 7,46 кв м
Кабинет — 9,93 кв м
С/у — 6,20 кв м

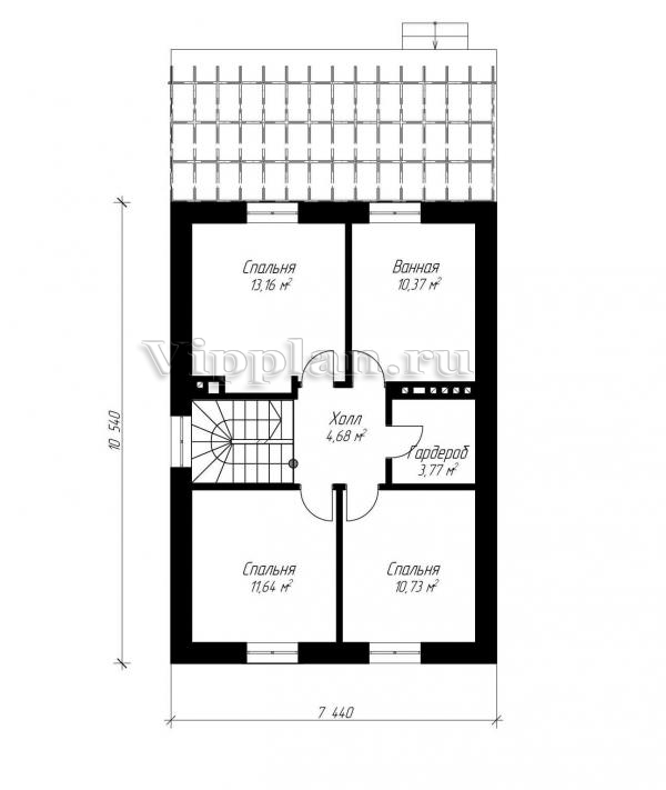
План мансардного этажа


Ванная — 10,37 кв м
Холл — 4,68 кв м
Гардероб — 3,77 кв м
Спальня — 13,16 кв м
Спальня — 11,64 кв м
Спальня — 10,77 кв м
Проект небольшого узкого дома из кирпича Проект небольшого узкого дома из кирпича Проект небольшого узкого дома из кирпича Проект небольшого узкого дома из кирпича

Модификации проектов

Внесение изменений и привязка к участку строительства

В любой из проектов от компании VIPplan - Россошь по вашему желанию могут быть внесены изменения в материалы стен, материалы наружной отделки дома, а также будет произведена адаптация проекта под конкретный регион строительства (с учетом грунтов региона, геологических особенностей вашего участка и местных климатических условий) - БЕСПЛАТНО !!! (кроме проектов со скидкой и проектов наших партнеров).

Любой из проектов, размещенных на сайте rossosh.vipplan.ru мы можем выполнить из требуемых вам строительных материалов: ячеистый бетон (газобетон, пеноблок), керамоблок, кирпич, шлакоблок, бетонный блок, дерево (брус, клееный брус), каркасная технология (деревянный каркас, металлокаркас (ЛСТК)).

Фасад дома и его наружную отделку так же возможно выполнить с применением различных облицовочных материалов: структурной штукатурки, (с утеплителем и без), сайдингом (пластиковый или металлосайдинг), фиброплитами, кирпича.

 
6 Избранные
проекты

Доставка проектов по России: Москва (Московская область), Санкт-Петербург (Ленинградская область), Краснодар, Ростов-на-Дону, Ставрополь, Сочи, Волгоград, Новосибирск, Белгород, Брянск, Воронеж, Саратов, Хабаровск, Астрахань, Нальчик, Владикавказ, Екатеринбург, Тюмень, Самара, Нижний Новгород, Казань, Пермь, Уфа, Челябинск, Красноярск, Ханты-Мансийск, Иркутск, Курган, Оренбург, Омск, Томск, Барнаул, Новокузнецк, Кемерово, Абакан, Чита, Якутск, Южно-Сахалинск, Петропавловск-Камчатский и страны ближнего зарубежья: Белоруссия, Украина, Казахстан